U7 | Executive Office | Amara

Description of the design

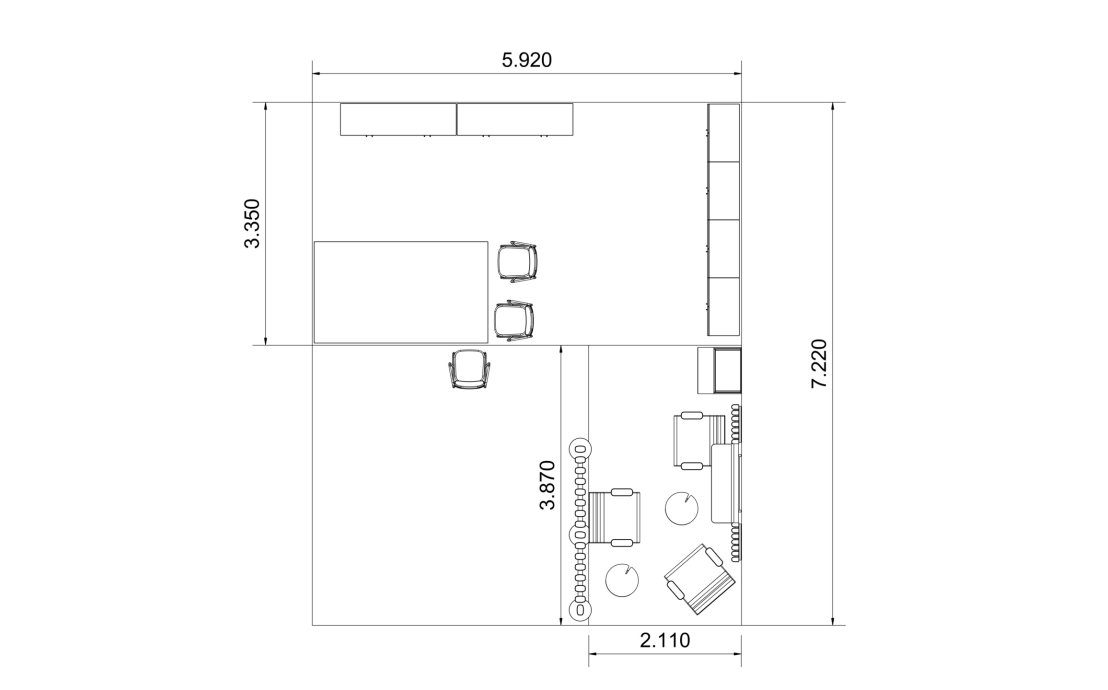
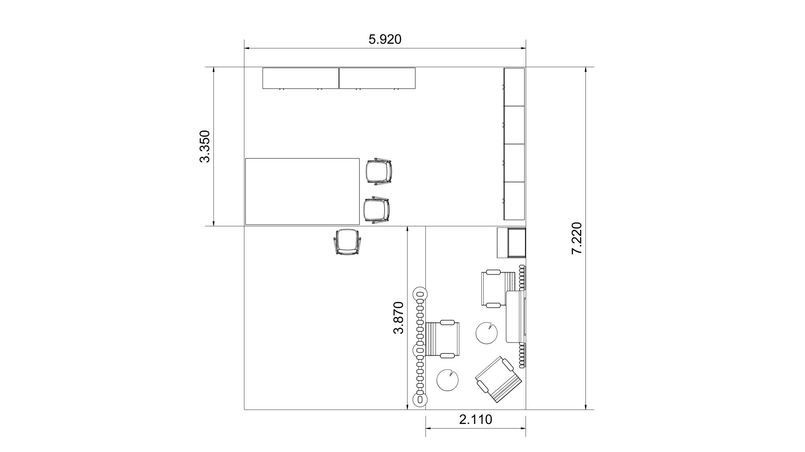
This office concept embodies the essence of elegance, ergonomics, and modern design – created for professionals who need a space for both focused individual work and high-level meetings. Covering 45 m², the office is clearly divided into three distinct functional zones, meeting all workplace needs with balance and refinement.

At the center of the main work zone is the sleek Toris desk (2200 mm long), paired with a practical side cabinet in warm walnut brown and beige tones. Comfort and posture support are ensured by the Giroflex 60 swivel chair, upholstered in natural leather. The storage zone features spacious Linea cabinets (2OH and 5OH) with beige fronts and walnut-brown top units, perfectly matching the color palette of the entire interior. Placed along the wall, the cabinets optimize space without disrupting the aesthetics of the room.

The conference area is based around a square Toris meeting table (1200×1200 mm), surrounded by four Giroflex 313 swivel chairs for a comfortable and efficient setup. Completing the space is a relaxation corner with modular MARO Sitiq sofas and the refined Lusso glass side table with a black top – ideal for informal conversations and short moments of rest.

The space is softly divided by Texo felt curtains, which significantly improve acoustics while adding a visual rhythm. The natural-inspired color palette – muted greens, walnut, beige, and olive – brings a calm and prestigious character to the interior. With its clear zoning and high-quality finishes, this layout is perfect for an executive space, director’s office, or prestige-oriented managerial workspace.

Looking to create an executive office that combines elegance and daily comfort? This 45 m² ready-made layout delivers a no-compromise solution – functional, refined, and implementation-ready without the design phase!

Area
43 m2
Width: 7 m
Length 6 m
Download files
dwg
g04.0_gabinet_amara_2d_calosc.dwg
(2.65MB)
dwg
g04.0_gabinet_amara_3d_calosc.dwg
(28.62MB)
Download files
dwg
g04.0_gabinet_amara_2d_calosc.dwg
(2.65MB)
dwg
g04.0_gabinet_amara_3d_calosc.dwg
(28.62MB)
Office area
executive area
Work type
individual work