U14 | Kitchen | Lano-E 300 Q

Description of the design

This elegant and ergonomic office kitchen arrangement impresses with its well-thought-out composition and aesthetics based on the contrast of graphite, grey and natural wood. The minimalist, linear built-in furniture of its length creates a cohesive form in which every element serves both a functional and decorative purpose.

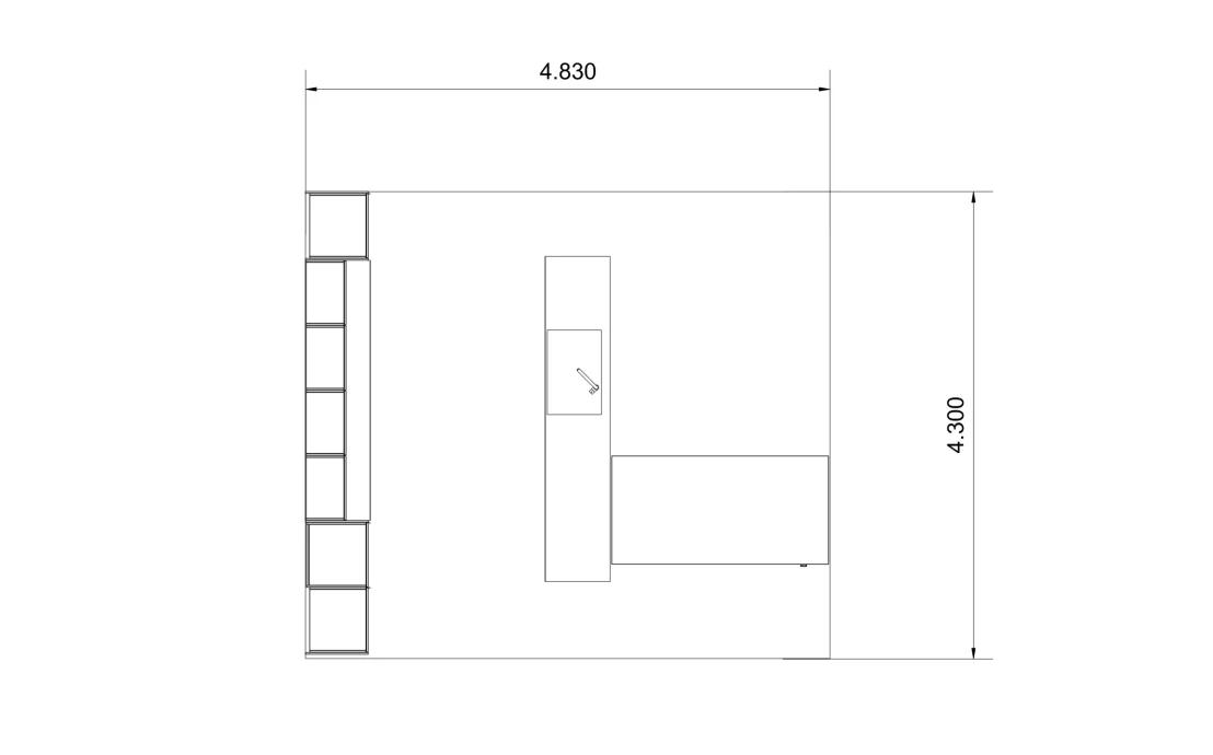
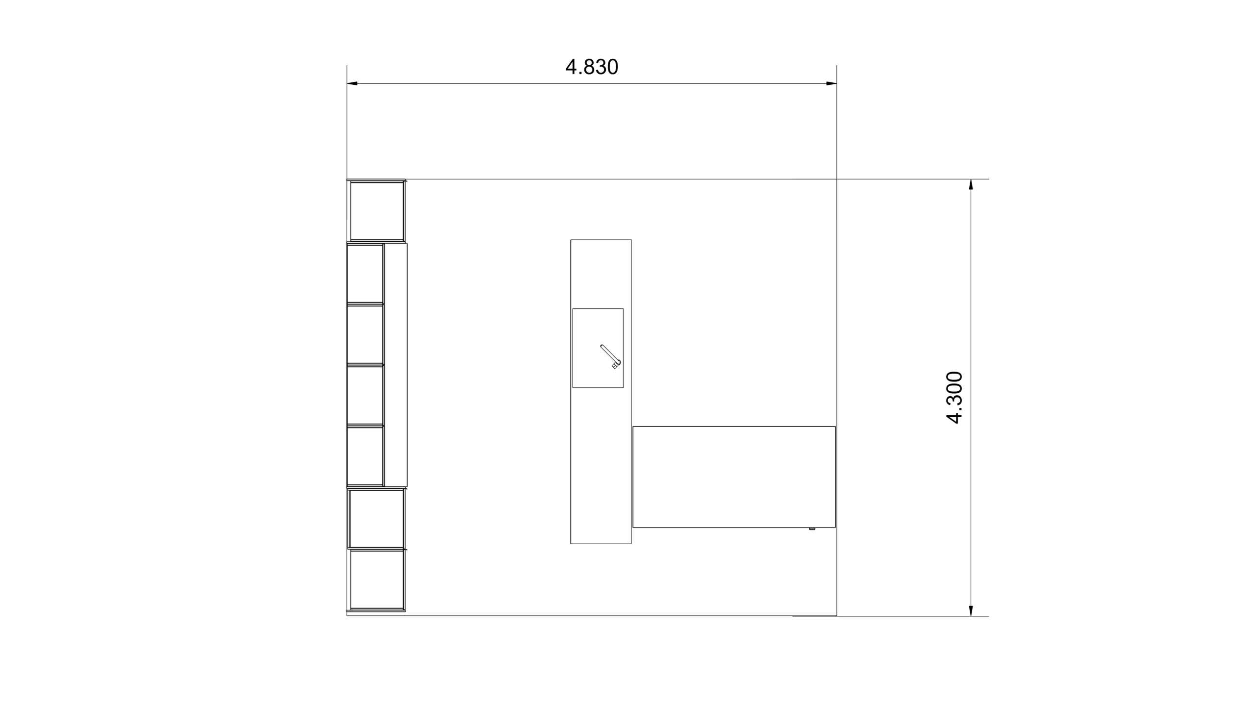
The central island integrated with the worktop and sink is the heart of the space, creating a clear division between the preparation zone and the shared-use area. It is an ideal place for quick coffee meetings, casual conversations or everyday team interactions. The fronts in graphite and grey correspond with the bodies, and the use of side claddings and plinths creates visually and functionally cohesive built-in furniture.

High functionality goes hand in hand with quality here. The base modules are equipped with spacious drawers, cabinets with hinged doors and a waste module. The built-in area with microwaves and the tall unit offer additional storage space and integrate the household appliances. The composite sink with a drainer and the Franke brand tap emphasise the high standard of finish. The layout uses elements with a height of 2200 mm, bodies on kitchen feet, 18 mm-thick boards, plinths with ventilation and details finished with laser edging. The kitchen has been designed to support the rhythm of the office day and build an atmosphere of modern collaboration.

This ready-to-use arrangement on 21 m² is not only visually appealing but, above all, a functional shared space designed with full ergonomics and accessibility from every side.

Area
21 m2
Width: 5 m
Length 4 m
Download files
dwg
k04.0_kuchnia_3d.dwg
(7.26MB)
dwg
k04.0_kuchnia_2d.dwg
(695.39KB)
Download files
dwg
k04.0_kuchnia_3d.dwg
(7.26MB)
dwg
k04.0_kuchnia_2d.dwg
(695.39KB)
Products used in this project
Office area
cafeteria + canteens
Work type
meeting
rest