U13 | Kitchen | CulinArt

Description of the design

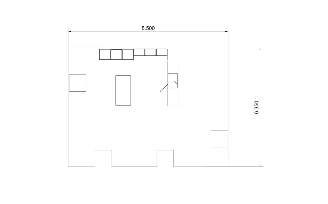
This is not an ordinary kitchen – it is a comprehensive zone designed with modern offices in mind, where organisational culture meets comfort and aesthetics. The 54 m² kitchen combines full-size built-in furniture with a spacious dining area, becoming an ideal place for shared meals, integration and teamwork.

The unique CulinArt layout is based on two lines of built-in furniture. The first is a wall module with a worktop and white fronts. It contains base cabinets (with hinged doors, drawers and a waste module) and three modules of upper cabinets. It is complemented by three tall units, including one integrated with a microwave and two with shelves and hinged doors. The entire built-in structure on kitchen feet, with soft-closing hinges and laser-edged fronts, ensures not only aesthetics but also high manufacturing quality.

The second line of built-in furniture is a work island equipped with base cabinets (with hinged doors), a sink module with a drainer and an innovative waste cabinet with a chute. The whole setup is complemented by a kitchen tap.

The well-thought-out layout is complemented by minimalist tables from the O-eM series – four square desks (900x900 mm) and one rectangular desk (1600x800 mm). Their white tabletops with laser edging and metal frames with height adjustment (740–820 mm) create five uniform stations for shared meals, coworking or short meetings. Thanks to this, the whole space becomes the true heart of the office – a place that brings people together.

Area
54 m2
Width: 9 m
Length 6 m
Download files
dwg
k03.0_kuchnia_2d.dwg
(697.56KB)
dwg
k03.0_kuchnia_3d.dwg
(4.02MB)
Download files
dwg
k03.0_kuchnia_2d.dwg
(697.56KB)
dwg
k03.0_kuchnia_3d.dwg
(4.02MB)
Products used in this project
Office area
cafeteria + canteens
Work type
rest