U7 | Bureau de direction | Amara

Description de la conception

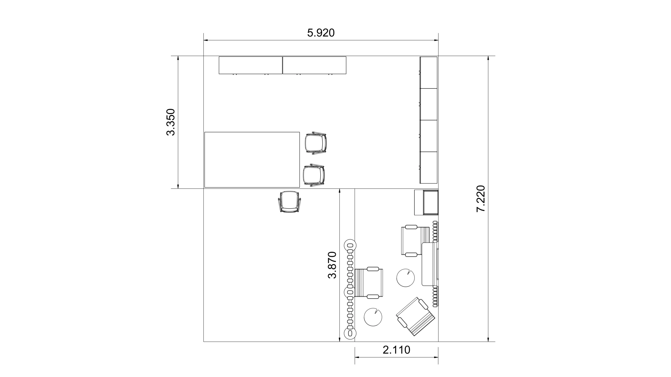
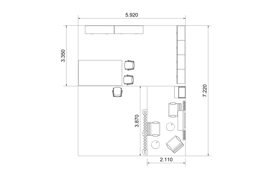
Vous rêvez d’un espace de travail élégant, acoustiquement maîtrisé et parfaitement fonctionnel ? Le bureau de direction AMARA de 43 m² est une solution complète qui allie confort, design et performance au plus haut niveau. Cette composition soigneusement pensée est conçue pour soutenir un travail efficace et des réunions de prestige, dans un environnement harmonieux propice au développement de votre activité.

Le bureau AMARA se distingue par son design contemporain et son acoustique exceptionnelle. Grâce aux éléments professionnels d’absorption acoustique, vous oubliez les distractions sonores : l’espace devient idéal pour la concentration, les conversations confidentielles et les réunions sans perturbation. Chaque détail a été choisi avec soin pour garantir une cohérence esthétique tout en assurant une ergonomie optimale et une atmosphère raffinée.

Le point fort de cette composition réside dans les chaises tapissées sur luge de la collection MARO. Leur silhouette classique, habillée de tissus contemporains, s’intègre parfaitement à la zone de réunion et garantit un confort prolongé. L’espace détente est quant à lui composé de canapés élégants, munis d’accoudoirs et posés sur de fines structures métalliques, habillés dans les mêmes textiles pour une harmonie parfaite. Le fauteuil de travail pivotant Bejot assure une posture ergonomique au quotidien, alliant légèreté et confort dans une teinte sobre et apaisante. Le mobilier directionnel issu des collections Amara et Linea, dans des tons chauds de bois foncé et de beige doux, complète l’aménagement en apportant fonctionnalité et sobriété.

Le bureau AMARA est bien plus qu’un lieu de travail : c’est un espace de direction où le design rencontre la fonctionnalité, le calme et le professionnalisme. Prêt à l’emploi, il transforme immédiatement votre environnement en un lieu propice à la concentration, à l’échange et à l’image de marque.

Surface
43 m2
Largeur de la mise en page: 7 m
Longueur de la mise en page 6 m
Fichiers à télécharger
dwg
g04.0_gabinet_amara_3d_calosc.dwg
(28.62MB)
dwg
g04.0_gabinet_amara_2d_calosc.dwg
(2.65MB)
Fichiers à télécharger
dwg
g04.0_gabinet_amara_3d_calosc.dwg
(28.62MB)
dwg
g04.0_gabinet_amara_2d_calosc.dwg
(2.65MB)
Zone de bureau
bureau à domicile
Mode de travail
travail concentré